Azailya SODIC: A Luxurious Compound in New Heliopolis
- Akarat Est.

- Feb 25, 2024
- 2 min read
Welcome to Azailya, a distinguished phase within the famous SODIC East Compound, offering a blend of luxury, sophistication, and a prime location in New Heliopolis. This blog shows the allure of Azailya, focusing on its unique features and the unparalleled lifestyle it promises.
Strategic Location
Azailya is strategically located in New Heliopolis, seamlessly connected to major roads like Cairo-Ismailia and Cairo-Suez. Its proximity to Al Sherouk City, the New Administrative Capital, and the Regional Ring Road ensures convenient access to key destinations, making it a hub for modern living.

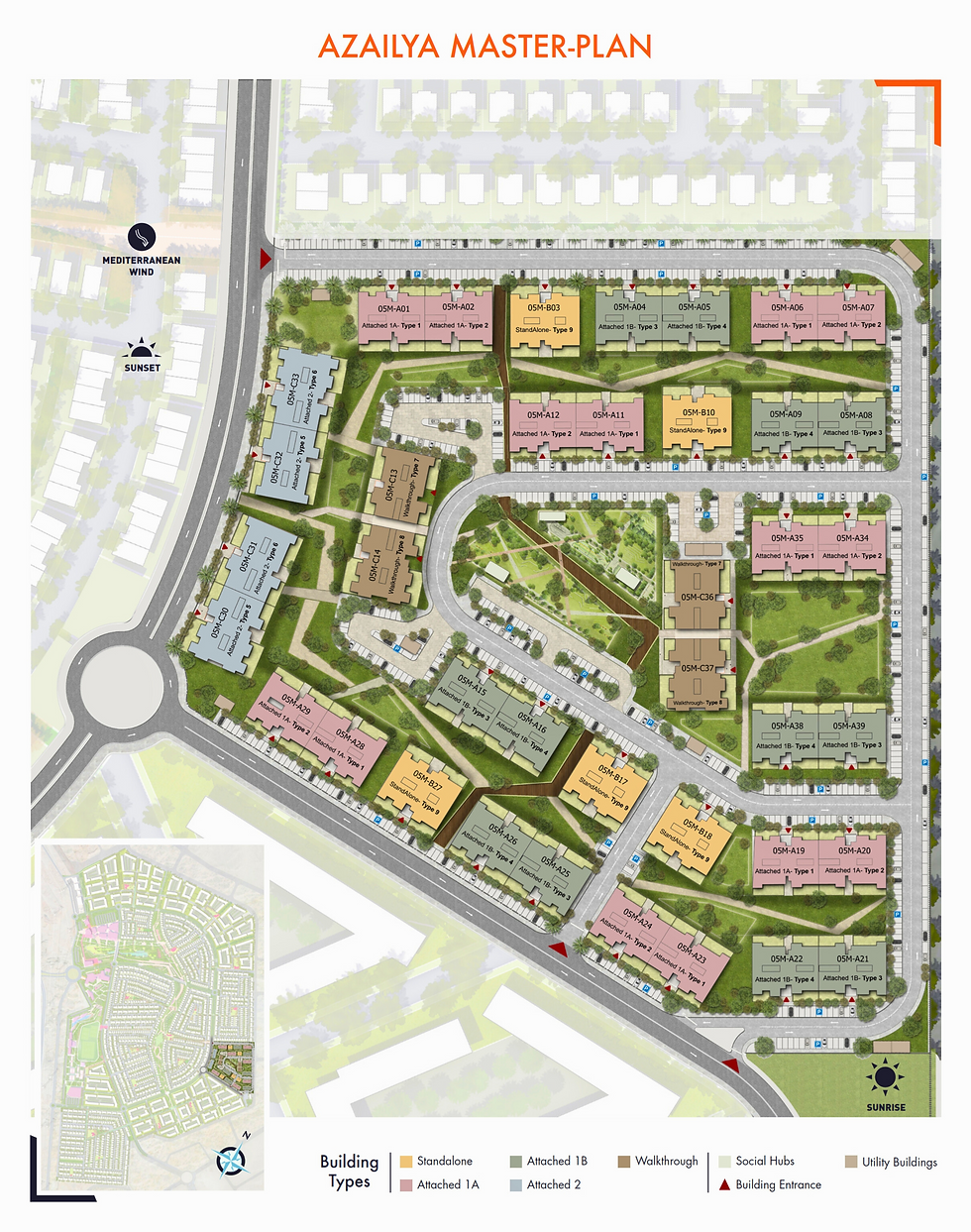
Project Overview
Space: Covering 100 acres, Azailya combines residential buildings with expansive green spaces, creating a harmonious environment.
Unit Types: Azailya offers a variety of units, including apartments and penthouses, with sizes starting from 120 square meters.
Payment Plans: With a 5% down payment, you can secure your unit and enjoy flexible installment options over 8 years.
Azailya Lifestyle
Azailya, the pioneer of apartment residences in SODIC East, fosters a community that cherishes outdoor living and draws inspiration from nature. SODIC East, sprawling over 655 acres, ensures a suburban experience without compromise, boasting 84% open and green spaces.

Architectural Marvel by Sasaki
Azailya's architectural brilliance is realized through collaboration with Sasaki, a Massachusetts-based firm well-known for its innovative designs. With clean lines, rooftop terraces, and a contemporary aesthetic, Azailya blends modernism with nature, creating a serene and invigorating atmosphere.

Variety in Units
Azailya offers five distinct building types, featuring two and three-bedroom apartments with sizes ranging from 120 to 210 square meters. The design emphasizes connectivity between indoor and outdoor spaces, enhancing the overall living experience.

Services and Amenities
Mosque and Garage: A mosque designed in Islamic style and a spacious garage cater to residents' religious and parking needs.
Commercial Mall: A vibrant mall with diverse stores, providing access to international brands and catering to refined tastes.
Medical Facilities: Major clinics operate within Azailya, offering healthcare services and ensuring residents' well-being.
Transportation and Security: Efficient transportation options and 24/7 security, including modern surveillance, contribute to a safe and secure community.
Recreation and Well-being
Azailya prioritizes residents' recreational and well-being needs:
Health Club: A fully equipped health club with a gym, sauna, jacuzzi, and spa facilities.
Food Court: Restaurants and cafes offering diverse culinary experiences.
Outdoor Activities: Paved tracks for walking, running, and cycling, promoting a healthy and active lifestyle.
Family-Friendly Spaces: Open areas for barbecues, birthday parties, and a dedicated children's entertainment area.

Sustainable Living
Azailya aligns with environmentally friendly practices, incorporating solar energy to minimize its ecological footprint.
Modern Luxurious Life
Azailya SODIC stands as a testament to modern luxury and thoughtful urban planning. For those seeking an unparalleled living experience in the heart of New Heliopolis, Azailya stands strong with open arms. Secure your unit now and embrace a lifestyle where sophistication meets serenity, and luxury intertwines with nature. Azailya is not just a residence; it's a statement of elevated living.





Comments